Timetrikus elektromos közepes feszültségkapcsoló-szekrény: A közép-feszültség elosztó állomásokon kifejezetten használt kapcsolóberendezés. A közepes feszültségkapcsoló-szekrény egy speciálisan használható kapcsolóberendezés, amelyet a közepes feszültség-elosztó állomásokon használnak, a Timetric Electric által előállított. A timetrikus elektromos közepes feszültségkapcsoló szekrény szekrényből és megszakítóból áll, és olyan funkciókkal rendelkezik, mint a beérkező és a kimenő vonalak, a kábelek bejövő és kimenő vonalak, valamint a Busbar csatlakozás. A névleges feszültsége 1-17,5 kV, a névleges áram 630-4000A.
A közepes feszültségkapcsoló -szekrény feszültségtartományát 36 kV -en belül is kiterjeszthetjük, ideértve a gyakoribb feszültségszinteket is, például 3kV, 6kV, 10 kV, 20 kV és 35 kV.
Alkalmazási területek: A közepes feszültségkapcsoló -szekrényeket elsősorban a városi lakóépületekben, az állami épületekben, az autópályákban, a vegyiparban stb. Használják az energiaátvitelhez és az eloszláshoz, valamint az alállomások bemeneti és védelme és védelme.
Mi az a közepes feszültségkapcsoló szekrény? A fémmel zárt kapcsolókészülék, amelynek jó szigetelési teljesítménye van a közepes feszültségkapcsolókon kívüli egyéb berendezéseknél, megakadályozza az ívek égését az energiafelhasználáson keresztül, biztosítja az energiafelhasználás biztonságát, és elkerüli a közepes feszültségkapcsolók hibatartományának kibővítését is. A közepes feszültségkapcsoló szekrény két fő részből áll: a szekrénytestből és a megszakítóból, és olyan funkciókkal rendelkezik, mint a felső beömlőnyílás és a kimeneti vonalak, a kábel bemeneti és kimeneti vonalak, valamint a Busbar csatlakozás. A szekrénytest házból, elektromos alkatrészekből (beleértve a szigetelő alkatrészeket), különféle mechanizmusokból, másodlagos csatlakozókból és csatlakozásokból áll.
Milyen kategóriák vannak a közepes feszültségű kapcsolókészülékek kategóriái?
A közepes feszültségű kapcsolóberendezések szerkezete szerint a közepes feszültségkapcsoló-kapcsolóberendezések több kategóriája van:
(1) A félig zárt, közepes feszültségkapcsolóberendezések, a szekrény elülső és oldalai vannak bezárt, a hát és a buszbarát ki vannak téve, a szerkezet egyszerű, a költségek alacsonyak, a biztonság gyenge, és közel áll ahhoz, hogy kiküszöböljék, például a GGLA típushoz.
(2) Box-típusú közepes feszültségű kapcsolóberendezés, fémhéjjal, de kevesebb rekesszel, a buszrárt is bezárták, és a biztonság jobb. Mint például az XGN típus.
(3) Intervallum-típusú közepes feszültségű kapcsolóberendezések, minden szobát egy vagy több nemfémes partíció választ el, és a biztonság jobb. Mint például a jyn típusú.
(4) A páncélozott közepes feszültségű kapcsolóberendezések, minden szobát fémpartíciók választanak el és megalapozottak, jó biztonsággal, komplex szerkezetgel, nagy feldolgozási pontossággal és kissé magasabb árral. Mint például a Kyn típusú Kínában és a ZSL típusú ABB -ben.
| LTEM | Egység | Paraméterek | |
| Névleges feszültség | KV | 36 | 40.5 |
| Névleges frekvencia | HZ | 50 | |
| Besorolva | A | 63012501600200025003150 | |
| Branch BusBar besorolású áram | A | 63012501600200025003150 | |
| A fő buszrár besorolású áram | A | 63012501600200025003150 | |
| 1 perc energiafrekvencia ellenáll a feszültségnek | KV | 70 | 95 |
| Megvilágító impulzus ellenáll a feszültségnek | KV | 170 | 185 |
| A minősített rövid ideig tartó ellenállási áram (4s) | a | 16/20/25/31.5/40 | |
| Minősített rövidzárlat -törés (csúcs) | a | 40/50/63/80/100 | |
| Névleges feszültség a vezérlőáramkör számára | V | DC110, DC220, AC220 | |
A közepes feszültségű kapcsolóberendezések felhasználási környezeti követelményei között szerepel a hőmérséklet, a páratartalom, a magasság, a levegőminőség és az egyéb szempontok.
1. hőmérsékleti követelmények: A közepes feszültségű kapcsolóberendezések hőmérsékleti követelményei általában -5 ℃ ~+40 ℃. Ha a hőmérséklet meghaladja ezt a tartományt, akkor az elektromos szekrény elektromos teljesítménye, mechanikai teljesítménye és védelmi szintje befolyásolja.
2. Páratartási követelmények: A közepes feszültségű kapcsolóberendezések páratartalmú követelményei általában az, hogy a relatív páratartalom nem haladja meg az 50%-ot. Ha a páratartalom túl magas, a szivárgás, a szigetelés csökkentése és más problémák előfordulhatnak az elektromos szekrényben, befolyásolva a berendezés élettartamát és biztonságát
3. magasságig tartó magassági követelmények: A nagy magasságú területeknél a közepes feszültségkapcsolóberendezéseket csökkentett kapacitással kell használni, vagy a releváns szabványoknak megfelelően ellenállni a feszültségvizsgálatoknak. Például 3000 méter tengerszint feletti magasságban a szigetelés korrekciójára és az ellenállási feszültségvizsgálatokra van szükség a berendezés normál működésének biztosítása érdekében
4. Levegőminőségi követelmények: A közepes feszültségű kapcsolóberendezések levegőminőségi követelményei viszonylag magasak, és általában nem tartalmaznak korrozív gázokat, port és más káros anyagokat. Amikor ezek a káros anyagok léteznek a levegőben, károsítják az elektromos berendezéseket, és befolyásolják a berendezés élettartamát és biztonságát
A közepes feszültségű kapcsolóberendezések fő jellemzői és előnyei a következő szempontokat tartalmazzák:
1. nagy teljesítményű paraméterek: A közepes feszültségű kapcsolóberendezések kiváló teljesítményű paraméterekkel, például nagyfeszültségű képességekkel és rövidzárlati áram ellenállással rendelkeznek. Például, a villámimpulzus ellenáll a közepes feszültségkapcsoló feszültségének 75 kV-ra, és a névleges rövid távú ellenállási áram elérheti a 25-40KA-t. Stabilan működhet különféle nagyfeszültségű környezetben, hatékonyan ellenáll a hibás sokkoknak, például a túlfeszültségnek és a rövidzárlati áramnak az energiarendszerben, és biztosítja az áramellátás folytonosságát.
2. Jó szigetelés és íves teljesítmény: A közepes feszültségű kapcsolóberendezéseket jó szigeteléssel és ívteljesítményekkel tervezték. Például a közepes feszültségű kapcsolóberendezések belső ívkapacitása eléri a 31,5 ka/4s és 40 ka/0,5s-t, amely megfelel az IAC-szintű AFLR szabványnak, hatékonyan korlátozhatja az ARC ütközési tartományát a belső hibák során, csökkentheti a kabinet és a környező berendezések károsodását, és biztosítja a személyzet és a berendezések biztonságát.
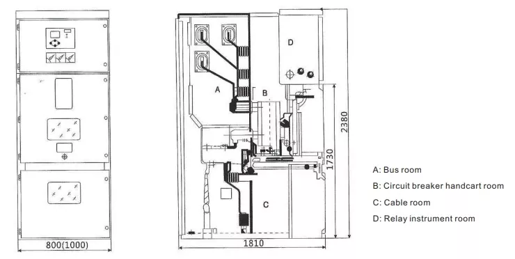
3. moduláris és miniatürizált kialakítás: A közepes feszültségű kapcsolóberendezések általában a moduláris kialakítást alkalmazzák, amelyet könnyen előállítani, összeszerelni, karbantartani és átalakítani. Például a közepes feszültségű kapcsolóberendezések szekrényét független funkcionális egységekre osztják, mint például a Busbar szoba, a megszakító szoba, a kábelszoba és a vezérlő rekesz. Az egyes egységek méretét és csatlakozási felületét szabványosították, amely kényelmes a hibahelyzethez és az elszigeteltséghez, csökkentve az áramszünetek idejét és a karbantartási költségeket.
4. Ezenkívül egyes modellek szekrény szélessége csak 550 mm, ami nagymértékben csökkenti a padlót és a szűk földforrásokkal rendelkező helyekhez.
5. Intelligens funkciók: A modern közepes feszültségű kapcsolókészülékek különféle intelligens funkciókkal rendelkeznek, beleértve a beágyazott intelligens hőmérséklet-megfigyelést, a vákuum ívkamra jellemző megfigyelését, a kocsi szekrényének intelligens megfigyelését, a mechanikai jellemzőket és a másodlagos áramkör megfigyelését stb., Amelyek a berendezések működését valós időben felfoghatják a berendezések működését, és az intelligens működést felfoghatják, és az intelligens irányítást és az intelligens irányítást felfoghatják, és az intelligens irányítást, és az intelligens irányítást fedezhetik fel, és az intelligens irányítást, és az intelligens irányítást fedezhetik fel. Földi kések vezérlése, megfigyelése és védelme stb., Javítsa a berendezések automatizálásának és a működési biztonság fokát. 6. Magas biztonsági garancia: A közepes feszültségű kapcsolóberendezést öt védelmi reteszelő és egyéb biztonsági intézkedésekkel tervezték. Például a közepes feszültségű kapcsolóberendezések öt védelmi reteszelői kialakítást fogadnak el, hogy megakadályozzák a téves műveletet, például a megszakító kocsi tolását és húzását terhelés alatt, téves megnyitás és a megszakító téves bezárása stb., Alapvetően biztosítva az operátorok biztonságát.

Testreszabhatja -e a cég a termékeket az én igényeim szerint?
Igen, testreszabhatjuk a termékeket az ügyfelek igényei szerint. Általánosságban elmondható, hogy az ügyfeleknek csak az áramköri elrendezést, feszültséget, áramot stb.
Mi a leggyorsabb szállítási időd?
Általában elfogadjuk az ügyfelek kérdéseit. Miután a kapcsoló szekrény műszaki paramétereit csatlakoztatták, 1-2 napot vesz igénybe az árlista kiadása és az ügyfelekkel való kommunikáció a tényleges helyzet alapján a termelési és szállítási időről.
Milyen az értékesítés utáni szolgáltatása?
Támogatunk egy 1 éves garanciát. A normál árajánlat nem tartalmazza a helyszíni értékesítés utáni szolgáltatást. Ingyenes online kommunikáció és útmutatás áll rendelkezésre.
KYN61 33KV MV HV közepes nagyfeszültségű elektromos kapcsolóberendezés
Kyn28 páncélozott levegő szigetelt kapcsolóberendezés beltéri 11kV
Magas frekvenciájú kapcsoló egyenáramú tápegység GZDW
Beltéri zárt energiaelosztó szekrény XL-21
Alacsony feszültségű energiaeloszlású reaktív kompenzációs szekrény fedett GGJ sorozat
MSN típusú alacsony feszültségű fiók típusú kapcsoló szekrény